Conix Conix Conix
Меню

Проект С - 426

ЗП:Conixtrade
РЗП:Sofia
Етажи:Warehouse, logistics
Спални:3 120 m2/33 583 ft2
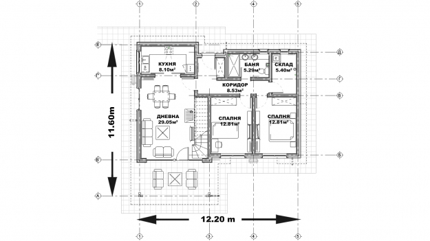
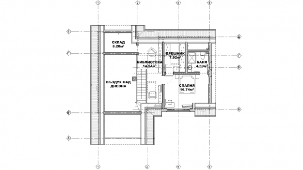
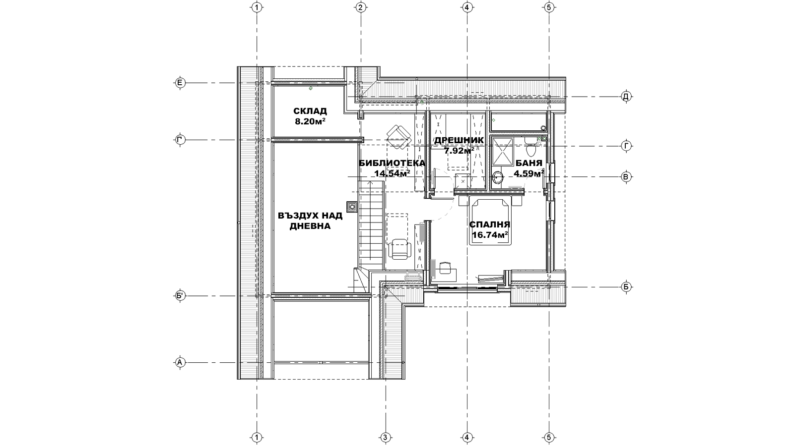
  • Застроена площ

    100 кв.м.

  • Разгъната застроена площ

    147 кв.м.

  • Етажи

    2

  • Стаи

    5

  • Бани

    3

  • Тип покрив

    Четирискатен

Impressions

HUF house MODUM 6:10