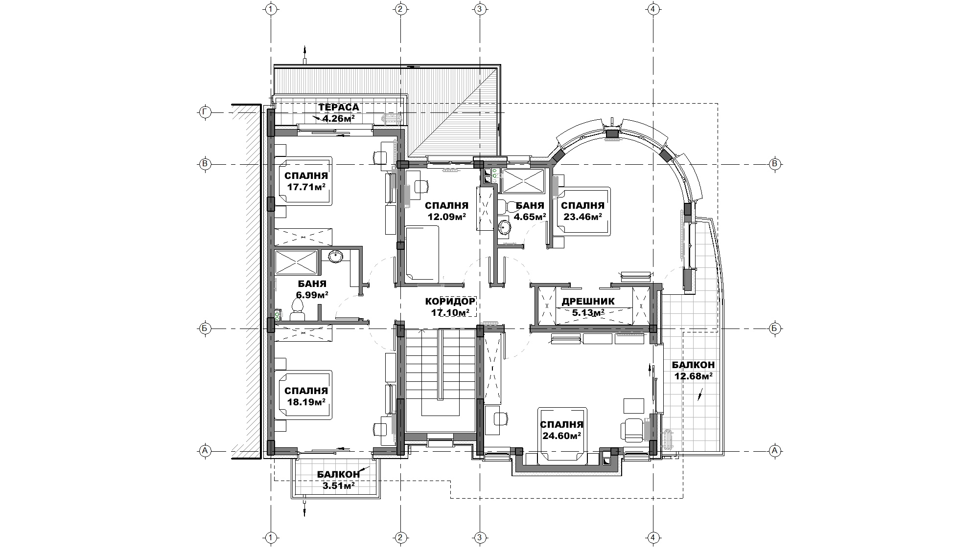
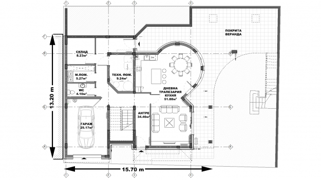
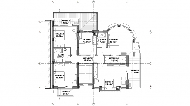
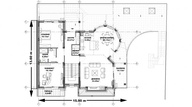
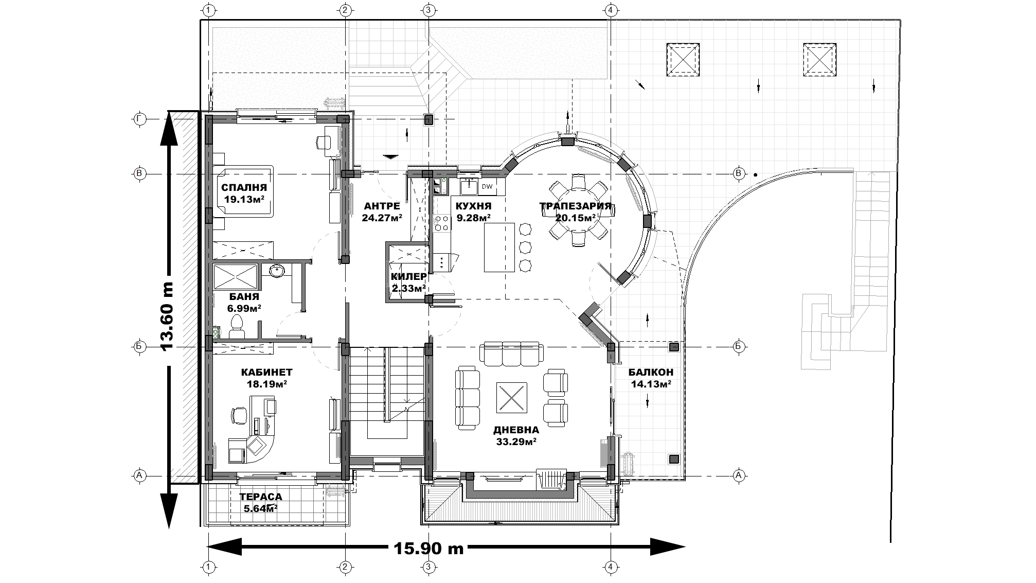
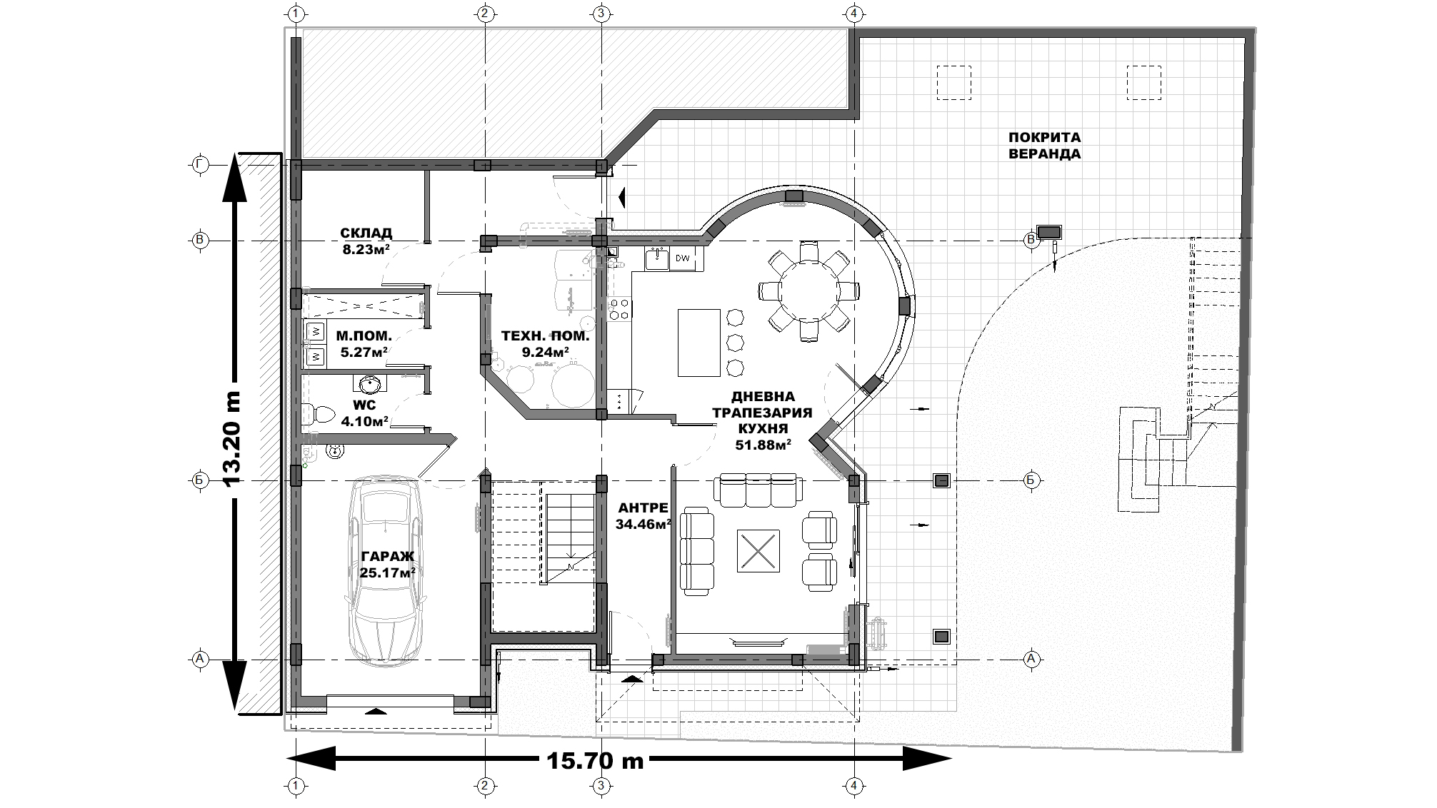
Проект С - 284 ЗП:ConixtradeРЗП:SofiaЕтажи:Warehouse, logisticsСпални:3 120 m2/33 583 ft2 Застроена площ 180 кв.м. Разгъната застроена площ 527 кв.м. Етажи 3 Стаи 9 Бани 4 Тип покрив Четирискатен Impressions HUF house MODUM 6:10